Trilocale in vendita

Nichelino, Via 1º Maggio - Mercato
€ 219.000
3 locali 3 locali
80 Mq 80 Mq
1 bagno 1 bagno

Trilocale in vendita

Nichelino, Via 1º Maggio - Mercato

Descrizione annuncio

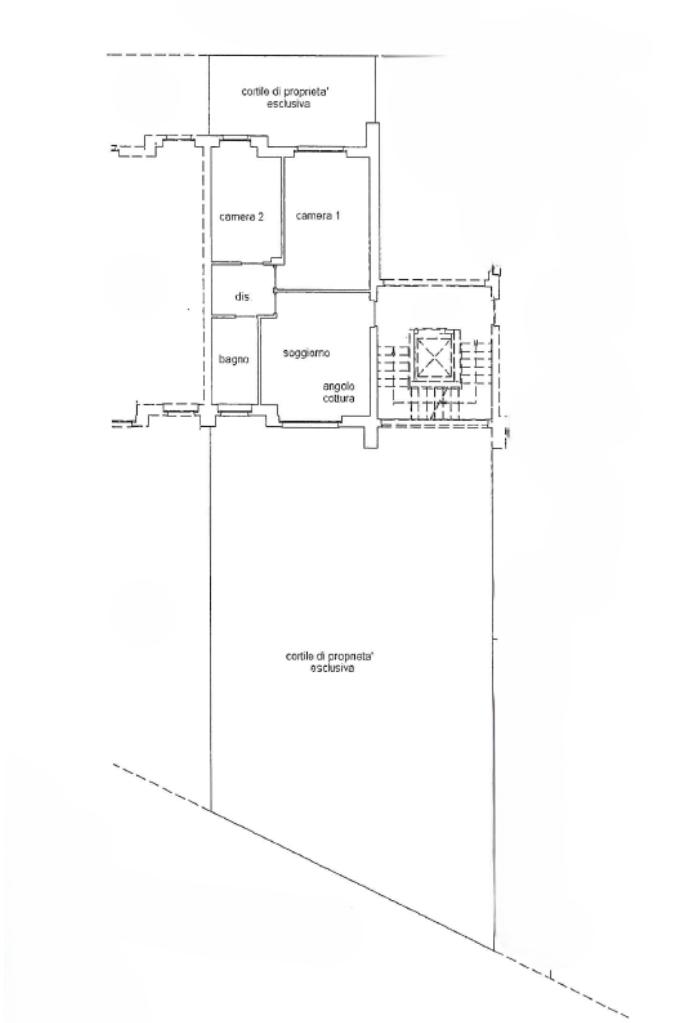
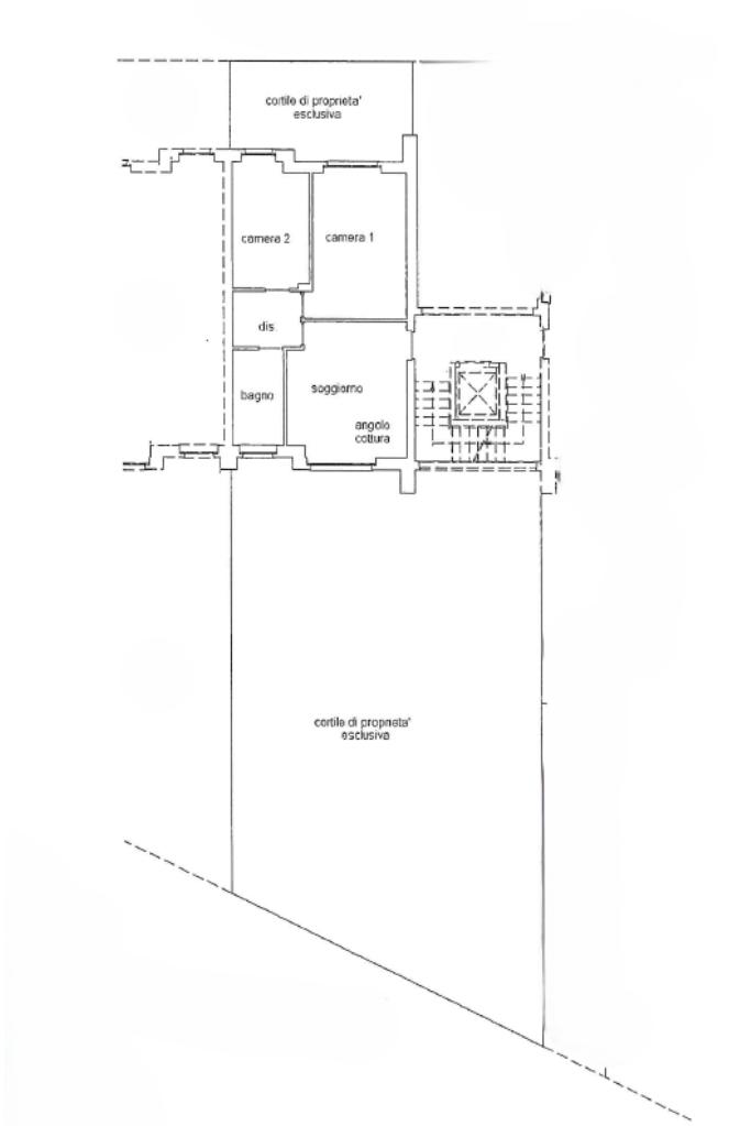
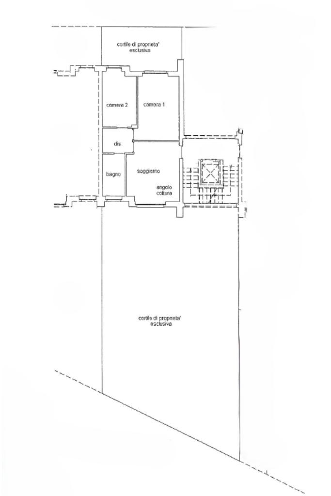
Proponiamo in vendita luminoso trilocale situato al piano terra di una palazzina moderna edificata nel 2014, in zona centrale di Nichelino, posizione strategica e comoda a tutti i principali servizi, negozi, scuole e collegamenti. L’appartamento si distingue per gli spazi funzionali e per il comfort abitativo garantito dalle più recenti tecnologie costruttive.

L’ingresso conduce alla zona giorno con angolo cottura, un ambiente accogliente e ben organizzato che si apre direttamente su un ampio giardino privato, perfetto per vivere momenti di relax all’aria aperta, pranzi in famiglia o per chi desidera uno spazio verde da godere in ogni stagione completo di impianto di irrigazione. La zona notte è composta da due camere da letto luminose e ben distribuite e da un bagno con doccia, moderno e funzionale. Tutti gli infissi sono dotati di zanzariere e la terrazza della zona giorno è compelta di tenda invernale ed estiva.

L’immobile è dotato di riscaldamento a pavimento, soluzione che garantisce comfort e ottima efficienza energetica, oltre a impianto di antifurto e tapparelle elettriche, elementi che aumentano sicurezza e praticità nella vita quotidiana.

Completano la proprietà una cantina e un box auto completo di soppalco e con basculante elettrico, accessori sempre molto ricercati che rendono la soluzione ancora più completa. Un appartamento ideale per chi cerca una casa moderna, efficiente e con uno spazio esterno privato, senza rinunciare alla comodità di vivere nel cuore della città.

Mostra tutto

Caratteristiche

Rif.:
61189767
Piano:
Terra di 2 con ascensore
Totale piani:
2
Box:
1
Camere da letto:
2
Arredamento:
Assente
Mostra tutto
Prezzo Prezzo
€ 219.000
Rata mutuo Rata mutuo
€ 1.032 / mese
Spese annue Spese annue
€ 1.000
Proponi il tuo prezzoProponi il tuo prezzo

Classe Energetica

B
B
B
B
B
B
B
B
B
EP globale non rinnovabile:
46.66 kW h/m² anno
EP globale rinnovabile:
0.00 kW h/m² anno
EP invernale del fabbricato:
EP estiva del fabbricato:
Anno di costruzione:
2014
Riscaldamento:
Centralizzato
Tipo impianto:
A pavimento
Tipo alimentazione:
Metano

Ti interessa visionare l'immobile?

Fissa un appuntamento  Fissa un appuntamento

Richiedi informazioni

Clicca su Leggi per aprire l'informativa
* Questi campi sono obbligatori

Calcola il tuo mutuo

Semplice e senza impegno
Anticipo

( % )
Mutuo

( % )

pochi semplici passi

inserisci i tuoi dati
Questionario completato
Grazie per aver richiesto un appuntamento senza impegno con un nostro Consulente del Credito e Assicurativo.

Hai inserito correttamente tutti i dati necessari e a breve riceverai una e-mail con un link da convalidare per inviare i tuoi dati.
Affiliato
Leonorahome Snc
Prossima Apertura, 10042 Nichelino (TO)
Prossima Apertura, 10042 Nichelino (TO)
Zona: Nichelino
Mostra su mappa
Affiliato
Leonorahome Snc
Prossima Apertura, 10042 Nichelino (TO)

2026 Tecnocasa Franchising S.p.A. - P. IVA 08365160152 - Via Monte Bianco 60/A 20089 Rozzano (MI). Ogni agenzia ha un proprio titolare ed è autonoma. Privacy policy | Policy utilizzo | Cookie policy